Address
Wagle Estate, Thane West
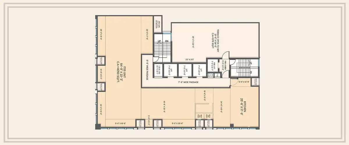
In the dynamic commercial landscape of Thane, the efficiency of an office or retail layout directly impacts productivity, aesthetics, and profit. The layout plans at Seasons Metro are engineered not just for a modern look, but for maximum functional utility, ensuring every single square foot works hard for your business's success. This focus on intelligent space planning is what sets this project apart in the Thane West market.
The core design philosophy behind the units at Seasons Metro Thane is to deliver column-free, highly efficient commercial spaces. This is a critical requirement for flexible modern businesses that need to adapt their environment quickly without being constrained by fixed structural elements. Located in the established business hub of Wagle Estate, Seasons Metro Thane West offers layouts that are meticulously crafted.
The developers, SM Ventures, have prioritized minimizing circulation wastage the unusable space often found in common corridors or irregularly shaped units. This focus means you get a significantly higher percentage of usable carpet area for your investment, providing genuine value in the competitive commercial real estate sector of Metro Thane. Furthermore, all designs incorporate Vaastu-compliant elements, structured to accommodate diverse business needs, from boutique offices to high-visibility retail outlets.
Seasons Metro Wagle Estate is designed as a mixed-use commercial hub, offering a diverse range of unit sizes to cater to different scales of business and investment portfolios. All layouts benefit from ample natural light, high ceilings, and strategically placed utility connections.
| Configuration | Ideal Carpet Area (Approx.) | Target Business | Key Design Feature |
|---|---|---|---|
| Smart Offices | 350+ SqFt | Startups, Consultants, Small Boutique Firms | Highly efficient, compact layouts optimized for low-maintenance, high-density professional use. |
| Grand Offices | 450+ SqFt | Established Corporations, Mid-sized Enterprises | Spacious, with flexible internal partitioning options for cabins, conference rooms, and open-plan seating. |
| Prime Retail Shops | 500+ to 600+ SqFt | High-end F&B, Showrooms, Banks, Premium Services | Ground floor visibility, double-height potential, and large display frontage to maximize commercial impact. |
A key structural feature across the office spaces in Metro Thane West is the column-free design. This is a game-changer in commercial architecture. Unlike traditional buildings where structural columns dictate layout, this advantage provides maximum flexibility for:
The architectural details of the Seasons Metro layout plans go beyond simple dimensions, focusing on elements that tangibly enhance the working environment and commercial viability, demonstrating true expertise in modern commercial design.
The Prime Retail Shops are designed specifically for maximum commercial impact and return on investment (ROI):
The office units are engineered for peak productivity and employee well-being:
For any large-scale commercial investment, trust and transparency are paramount. Investing in the layout plans of Seasons Metro Thane is a secure proposition, backed by regulatory oversight and a trusted developer legacy.
The entire project is registered under the Real Estate (Regulation and Development) Act (RERA). This registration ensures complete transparency regarding the carpet area, layout specifications, pricing, and project timeline. The official MahaRERA registration number for Seasons Metro is P51700080795. This compliance provides investors and end-users with the confidence that the final product will precisely match the efficient and detailed plans presented.
The collaboration of the Metro Group, Seasons Group, and Mohan Group under SM Ventures guarantees that the structural integrity, commitment to timelines, and finishing quality will uphold the promise of a truly premium commercial space in Metro Thane.
Q: What is the difference between Carpet Area and Super Built-up Area in Seasons Metro?
A: When considering Seasons Metro, it's vital to focus on Carpet Area, as listed in the configuration table (350+ SqFt, 450+ SqFt, etc.). Carpet Area is the net usable floor area of the unit, excluding the area covered by external walls, areas under service shafts, and common spaces. The Super Built-up Area includes the Carpet Area plus a pro-rata share of all common amenities (lobbies, stairs, elevators). SM Ventures guarantees RERA-compliant sale based on the transparent Carpet Area, ensuring you pay only for the space you can actively use.
Q: How does the Vaastu compliance affect the office layouts?
A: Vaastu compliance in modern commercial spaces, such as those at Seasons Metro Wagle Estate, translates into practical benefits. It ensures the primary entrance and key working zones are optimally aligned to promote positive energy flow. For example, ensuring the north or east direction is clear of heavy structures to maximize natural light and providing clear lines of sight within the office, which boosts team collaboration and focus.
Q: Can the Smart Offices be combined to form a larger unit?
A: Yes, the flexible, column-free design of the office units in Metro Thane is specifically engineered to allow for the seamless amalgamation of adjacent "Smart Office" (350+ SqFt) or "Grand Office" (450+ SqFt) units. This scalability is perfect for businesses expecting rapid expansion or investors looking to acquire a large, full-floor plate investment.
Q: What safety features are integrated into the layout plans?
A: Beyond the structural integrity, all layout plans at Seasons Metro include dedicated provisions for modern fire safety standards, clearly marked fire escape routes accessible from all points on the floor, and ample ventilation as required by commercial building codes, adding an essential layer of trustworthiness to the investment.
Elevate your business to Thane's most strategic address! Secure your space at Seasons Metro Wagle Estate. Call 9860949793 or visit https://seasonsmetro.in/ today.
Wagle Estate, Thane West
info@seasonsmetro.in

P51700080795